Компания Deepcool попыталась в очередной раз улучшить свою систему жидкостного охлаждения, но вот в чём именно и насколько? Особенностью тестирования стала новая платформа с восьмиядерным процессором
⇣ Содержание
Почти год назад, в октябре 2015-го, мы протестировали новую систему жидкостного охлаждения Deepcool CAPTAIN, а уже весной 2016 года китайская компания, дислоцирующаяся в Пекине, анонсировала новую линейку СЖО CAPTAIN EX с улучшенными характеристиками и новыми вентиляторами. С одной из таких систем – занимающей среднее положение в модельном ряду системой Deepcool CAPTAIN 240 EX – мы и познакомимся в сегодняшней статье.
Особый интерес, на наш взгляд, в сегодняшнем тестировании представляет тот факт, что у нас произошла смена тестовой платформы, в основе которой вместо 32-нм шестиядерного Intel Core i7-3970X Extreme Edition теперь лежит восьмиядерный Intel Core i7-6900K, выполненный по нормам 14-нм техпроцесса. Главный вопрос: изменится ли расстановка сил между лучшим суперкулером и заводской СЖО, сопоставимой с ним по стоимости?
⇡#Технические характеристики и рекомендованная стоимость
| Наименование характеристик | Deepcool CAPTAIN 240 EX |
| Радиатор | |
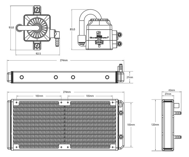
| Размеры, Д × Ш × В, мм | 274 × 120 × 27 |
| Размеры рабочего тела радиатора, Д × Ш × В, мм | 274 × 120 × 14 |
| Материал радиатора | алюминий |
| Число каналов в радиаторе, шт. | 14 |
| Вентиляторы | |
| Количество вентиляторов | 2 |
| Модель вентилятора | Deepcool TF120 |
| Типоразмер | 120 × 120 × 25 |
| Количество и тип подшипника(ов) | 1, гидродинамический |
| Скорость вращения, об/мин | 500–1800 (±10%) |
| Максимальный воздушный поток, CFM | 2 x 76,52 |
| Уровень шума, дБА | 17,6–31,3 |
| Максимальное статическое давление, мм H2O | 2 x 3,31 |
| Номинальное/стартовое напряжение, В | 12 / 4,3 |
| Энергопотребление: заявленное/измеренное, Вт | 2 x 1,44 / 2 x 1,42 |
| Срок службы, часов/лет | 50 000 / >5,7 |
| Размеры, Д × Ш × В, мм | 92,5 × 93 × 85 |
| Производительность, л/час | н/д |
| Скорость ротора помпы: заявленная/измеренная, об/мин | 2200 (±10%) / 2390 |
| Тип подшипника | циркониево-керамический |
| Срок службы подшипника, часов/лет | 120 000 / >13,6 |
| Номинальное напряжение, В | 6~13,8 |
| Энергопотребление: заявленное/измеренное, Вт | 1,92 / 1,91 |
| Уровень шума, дБА | н/д |
| Водоблок | |
| Материал и структура | медь, оптимизированная микроканальная структура с каналами шириной 0,2 мм (Skiving Fin) |
| Совместимость с платформами | Intel LGA115(х)/1366/2011/2011-v3 AMD Socket AM2(+)/AM3(+)/FM1/ FM12(+) |
| Дополнительно | |
| Длина шлангов, мм | 290 |
| Внешний диаметр шлангов, мм | 12 |
| Хладагент | нетоксичный, антикоррозионный (пропиленгликоль) |
| Общий вес системы, г | 1249 |
| Гарантийный срок, лет | 3 |
| Рекомендованная стоимость системы, долларов США | 89,99 |
Упаковка и комплектация
На лицевой стороне картонной коробки, в которой запечатана Deepcool CAPTAIN 240 EX, изображена верхняя часть помпы с трубкой – пожалуй, самая привлекательная для моддеров составляющая этой системы. Снизу указана модель СЖО и шестью пиктограммами выделены её ключевые особенности.
Обратная сторона коробки отведена под информацию о размерах каждого компонента системы и перечень поддерживаемых платформ, а снизу кратко изложены особенности охладителя и технические характеристики.
На стикере приведён номер модели, а также серийный номер. Чуть ниже можно увидеть, что система выпускается в Китае.
В основную коробку вставлена подложка из пористого картона с отсеками. В них размещены компоненты системы, дополнительно запечатанные в полиэтиленовые пакеты.
Иначе говоря, упаковка в достаточной степени надёжна, чтобы защитить радиатор и вентиляторы с аксессуарами от внешних воздействий на пути к пользователям.
Комплектация системы немного отличается от предшественницы (в основном в части креплений), но по-прежнему включает в себя всё необходимое для установки Deepcool CAPTAIN 240 EX на любую платформу и в любой совместимый с ней корпус.
При этом отметим, что отдельной термопасты в комплекте поставки системы снова нет, а значит она нанесена на основание водоблока для пусть и наиболее простого, но всё же лишь однократного использования.
Deepcool CAPTAIN 240 EX выпускается в Китае. Рекомендованная стоимость системы равна 89,99 доллара США, а в России в продаже данную модель на момент подготовки статьи мы не нашли. Гарантийный срок равен трём годам.
⇡#Особенности конструкции
EX-версия 240-го «капитана» базируется на модели Asetek 570LXL и представляет собой необслуживаемую и всегда готовую к эксплуатации систему жидкостного охлаждения.
Она состоит из радиатора с двумя вентиляторами, помпы с водоблоком и соединяющих их шлангов.
Размеры радиатора новой системы не изменились и составляют 274 × 120 × 27 мм. Впрочем, и остальные компоненты не модифицировались по габаритам, что хорошо видно на следующей схеме.
В прошлой статье про систему охлаждения Deepcool мы посетовали на чрезмерную жёсткость шлангов, усложняющих установку системы внутри корпуса. По всей видимости, такие замечания были высказаны не только нами, поскольку у версии EX шланги изменены. Теперь их внешняя оболочка выполнена не из прорезиненного корда, а из синтетического материала, позволяющего найти оптимальный баланс между жёсткостью и гибкостью шлангов.
Их длина практически не изменилась и от фитинга до фитинга составляет 290 мм, а вот внешний диаметр увеличен с 10 до 12 мм. Тем не менее, учитывая, что фитинги здесь применены точно такой же конструкции, как и у Deepcool CAPTAIN 240, осмелимся предположить, что их внутренний диаметр не увеличен.
Алюминиевый радиатор состоит из 14 плоских каналов с приклеенной между ними гофролентой.
Толщина оребрения составляет 14 мм.
С одной стороны радиатора приклеен стикер со штрихкодом и номером патента.
С другой стороны радиатора выведены два фитинга, на которых опрессованы гибкие шланги.
Находящееся справа от них отверстие с пломбой не предназначено для дозаправки или замены хладагента. Добавим, что в контур системы жидкостного охлаждения залита нетоксичная жидкость (предположительно, пропиленгликоль) с антикоррозионными присадками.
Конструктивно помпа, выполненная в стиле, который напоминает стимпанк, и имеющая размеры 92,5 × 93 × 85 мм, не претерпела изменений, лишь пластина крепления с винтами теперь встроена в её корпус, и к основанию не требуется приворачивать никаких направляющих.
Традиционно компания не приводит данных о производительности помпы, только заявляет о трёхфазном индукционном моторе и закрытом импеллере, за счёт чего «помпа стала более мощной».
При заявленных в спецификациях системы 2200 (±10%) об/мин реальная скорость ротора помпы, по данным мониторинга, составила 2380 об/мин. Благодаря использованию циркониево-керамической втулки в подшипнике помпы, срок его службы увеличен до 120 000 часов, что превышает 13 лет непрерывной работы. Заявленный в характеристиках уровень энергопотребления помпы 1,92 Вт был подтверждён результатами наших измерений. Редкий случай.
Медное основание водоблока имеет квадратную форму размерами 54 × 54 мм.
Водоблок получил микроканальную структуру с рёбрами высотой 3 мм и расстоянием между каналами 0,2 мм.
Термоинтерфейс серого цвета уже нанесён на основание водоблока, и в этом есть как плюсы, так и минусы.
Плюс в том, что установка водоблока на процессор предельно упрощается, поскольку термопасту наносить не надо. А минусы в том, что делать это, по понятными причинам, можно лишь однократно, и в том, что слой термоинтерфейса излишне толстый. Конечно, он выдавился за края процессора, что хорошо видно по полученным нами отпечаткам.
Но при контакте двух ровных поверхностей от увеличенного слоя термопасты будет только вред, поэтому мы пожелали бы Deepcool уделить этому внимание при очередной оптимизации серии CAPTAIN и комплектовать такие системы отдельной ёмкостью с термопастой.
Пожалуй, ключевым отличием Deepcool CAPTAIN 240 EX от предшественницы являются вентиляторы, которыми она комплектуется, — они относятся к новой серии Deepcool TF120. Это 120-мм модели с чёрной рамкой и чёрной 112-мм крыльчаткой с оригинальными лопастями.
Их в Deepcool назвали двойными, но на самом деле раздваиваются они только на выходе воздушного потока, благодаря внешней «полке».
Этого, по мнению инженеров компании, достаточно, чтобы повысить статическое давление, развиваемое вентилятором. Так, в спецификациях заявлены 3,31 мм H2O при максимальной скорости 1800 об/мин, что действительно является более высоким показателем, нежели у конкурентов на сопоставимых оборотах. Что касается минимальной скорости вентиляторов (а управляются они посредством ШИМ), то она равна 500 об/мин. Уровень шума может изменяться в диапазоне от 17,6 до 31,3 дБА.
Ещё одной оптимизацией в Deepcool TF120 являются специальные плавники по углам рамки на выходе воздушного потока.
Они предназначены для снижения уровня шума путём структурирования потока воздуха, выбрасываемого из вентилятора. Возможно, это даже работает (в полученном от автора тексте в этом месте был смайлик. — прим. ред.).
Диаметр статора составляет 44 мм. На его плёночной наклейке приведено название модели и электрические характеристики, а также указана страна производства.
По результатам наших измерений, каждый вентилятор потреблял не более 1,5 Вт, а стартовое напряжение оказалось равно 4,3 В.
Гидродинамический подшипник вентилятора должен прослужить не менее 50 000 часов, что эквивалентно 5,7 годамнепрерывной работы.
Добавим также, что крыльчатки съёмные и что закреплять вентиляторы на радиаторе можно с помощью как коротких, так и длинных винтов из комплекта поставки.
В качестве виброгасителей используются мягкие силиконовые уголки, встроенные в рамки «вертушек».
Всего на радиатор Deepcool CAPTAIN 240 EX можно установить четыре 120-мм вентилятора, а для их подключения используетсяPWM-хаб.
Cовместимость и установка
В плане совместимости с платформами Deepcool CAPTAIN 240 EX не отличается от предшественницы – её также можно установить на материнские платы для процессоров Intel конструктива LGA115(х)/1366/2011/2011-v3 и процессоров AMD с разъёмами Socket AM2(+)/AM3(+)/FM1(2+). Вся инструкция по установке размещается на одном снимке.
Процесс очень прост и интуитивно понятен, но если останутся какие-то вопросы, то компания подготовила специальное видео по монтажу СЖО.
В нашем случае установка Deepcool CAPTAIN 240 EX осуществлялась на новую тестовую платформу с процессором Intel конструктива LGA2011-v3. Сразу отметим, что теперь направляющие, к которым крепится водоблок, выполнены из более толстого металла и имеют усиливающие рёбра, предотвращающие выгибание.
Пластины крепления на самом водоблоке также получили металл увеличенной толщины, а значит, в совокупности крепление способно развивать более высокое давление на процессор и более плотный контакт.
Для размещения Deepcool CAPTAIN 240 EX мы выбрали верхнюю стенку корпуса системного блока.
Вентиляторы на радиаторе были сориентированы таким образом, чтобы выбрасывать нагретый воздух за пределы корпуса.
Тем не менее возможен и другой вариант ориентации вентиляторов на радиаторе СЖО – на вдув в корпус. Это позволит отыграть пару-тройку градусов максимальной температуры процессора, но потребует равноценного отвода нагретого воздуха за пределы корпуса системного блока.
Остаётся только подключить вентиляторы к PWM-хабу, а помпу к четырёхконтактному разъёму на материнской плате. При включении системы крышка помпы начинает плавно мерцать красным светом.
И красиво, и не слишком ярко, чтобы не отвлекать в ночное время, если боковая стенка корпуса системного блока прозрачна.
Пф, даже не удосужился скопировать остальную часть обзора, а я думал где заключение и тесты
GHOSTaltair117 Продолжение следует.....
уместная цена для водянки (с учетом доллара) Только нам оно не надо,греться зимой будет не от чего)))